Projet d'extension rénovation de la Tannerie

Retrouvez tous les jours les dernières actualités de Grand Bourg Agglomération !

Toutes les actualités

Thématique : Projets

Construite par la Ville de Bourg-en-Bresse et inaugurée en 2001, la Tannerie, labellisée Scène de musiques actuelles, est vieillissante et manque d’espaces. Pour donner un nouvel élan à cet équipement culturel unique dans le département, la Ville lance un projet d’extension-rénovation.

Le contexte

Construite par la Ville, gérée en concession de service public par l’association La Truffe et les Oreilles, la Tannerie a été labellisée Scène de Musiques Actuelles (SMAC) par l’Etat en 2010. C’est la seule SMAC du département de l’Ain.

Investie de missions de service public, la Tannerie propose l’accueil de concerts, l’accompagnement de musiciens professionnels et amateurs et de la médiation culturelle.

Vieillissante et manquant d’espaces, la Tannerie avait besoin d’un nouveau souffle afin d’assurer sa pérennité, d’accompagner les nouvelles pratiques de consommation culturelle et d’améliorer les conditions d’accueil du public et des artistes. La Ville lance donc un projet de rénovation-extension ambitieux, de nature à l’inscrire dans les réseaux de diffusion à notoriété nationale.

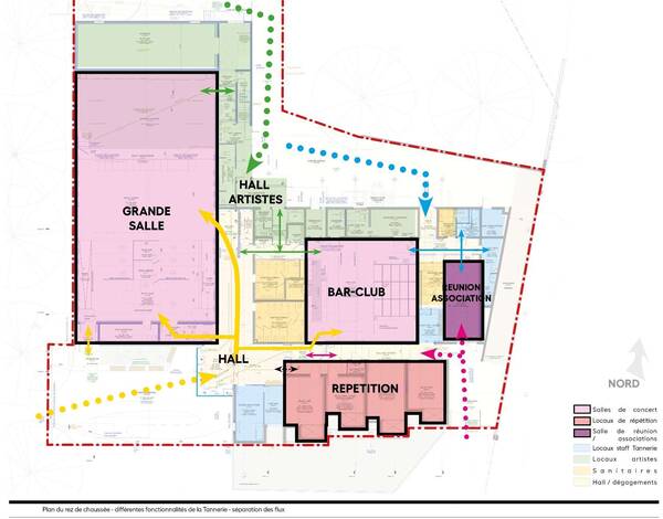
Le projet

  • Une nouvelle grande salle de concert de 800 places, adaptée
    aux standards techniques actuels (scène et
    ©AAGROOP et Atelier Laurent Chassagne
    matériel) sera créée dans l’extension.
  • L’actuelle salle de concerts sera transformée en bar/clubbing de 200 places, permettant la diffusion de petits concerts dans un espace convivial.
  • Les locaux administratifs, les zones d’accueil et de répétitions pour les professionnels et les amateurs seront réagencés avec des espaces d’accueil complémentaires.
  • Le bâtiment existant bénéficiera d’une rénovation énergétique complète pour améliorer les conditions d’accueil du public et notamment son confort en période estivale.
  • Cette extension-rénovation a été pensée pour s’intégrer au cœur du quartier de la Vinaigrerie et préserve notamment l’alignement d’arbres côté rue de la Vinaigrerie. Après travaux, l’offre de stationnement disponible sur le parking de la Vinaigrerie sera d’environ 215 places.

Source : Bourg-en-Bresse